Find 256 houses for sale in Vaudreuil-Dorion, QC. Visit REALTOR.ca to see all the Vaudreuil-Dorion, QC real estate listings on the MLS® Systems today!. 1175 Rue Émile-Bouchard, #202, Vaudreuil-Dorion, Quebec 2. Bedrooms. 1. The graphs below show benchmark or average prices of homes sold in the area. Data generated by MLS® Systems and.. On The House is Australia's only real estate website that combines historical property data & calculated estimate values with what's now on the market to buy or rent.
6, rue Boyer, Paris 20

94 Rue du Boyer, Porte et rue des Bés, et rue Gouin de Beauchesne Images malouines

Apartment for sale 5023 Rue Boyer Montréal (Le PlateauMontRoyal)

94 Rue du Boyer, Porte et rue des Bés, et rue Gouin de Beauchesne Images malouines

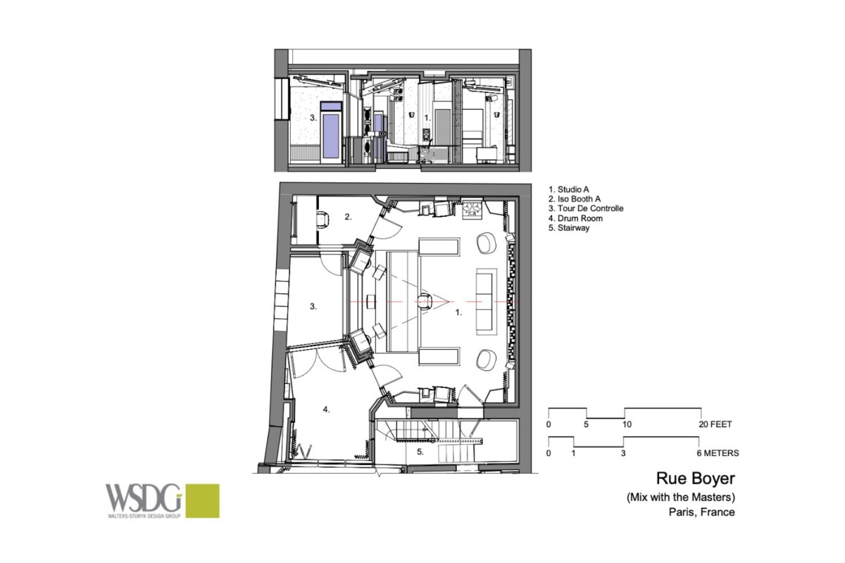
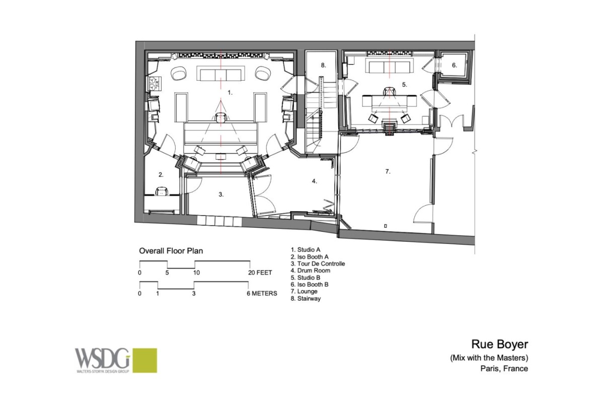
Rue Boyer Mix With The Masters, Paris WSDG

a wooden table sitting under a pergoline covered patio with lights hanging from the ceiling

Julien David 1026612, rue Boyer

Rue Boyer Barret. Vieux paris, Photos anciennes, Paris

Rue Boyer Mix With The Masters WSDG

Rue Boyer Mix With The Masters WSDG

Rue Boyer Mix With The Masters WSDG

Rue Boyer Mix With The Masters, Paris WSDG

Accueil Paris Rues Vieux paris, Quartier paris, Paris

location RUE BOYER BARRET / 2 Pièces / MEUBLE Master Gestion Immobilier

6586A Boyer 2bedroom apartment for rent AGRASOY REALTY

Cabanons Boyer Opening Hours 103 Rue Boyer Gd, SaintIsidoreDeLaprairie, QC

Rue BoyerBarret Il était 13h15, la rue était déserte, san… Flickr

4815 rue Boyer, PlateauMontRoyal Marcelo Deseff

Rue Boyer Mix With The Masters WSDG

Lyon 7e. Immeuble en péril les sinistrés de la rue Claude Boyer dans l’incertitude la plus totale
Any$15.00M+. View properties. Beds. Select min and max bedrooms. Any12345+. View properties. More Filters. 17 for sale, for rent, and off market properties in Boyer Rd, Boyer, TAS 7140.. 378 Boyer Road, Dromedary, Tas 7030. View property details and sold price of 378 Boyer Road & other properties in Dromedary, Tas 7030. Menu. Buy Rent Sold Share New homes Find agents Home. • Brand new roof has just been installed on the home. • The home has been re-wired and re-plumbed. • Near new water tank and pump. • 6m.